Evon Syväjärvi

Hämeenlinna – Kalasta, kokousta tai kokoa kaveriporukka kimppaan
Evon retkeilyalueen tuntumassa sijaitseva Syväjärvi on erähenkisten unelmakohde, jonne maailman melut eivät kanna! Tummavetisen järven rannalla sijaitseva vuokramökkikohde koostuu useista rakennuksista, jotka tarjoavat tilaa ja tekemistä rentoon yhdessäoloon, kokousteluun, palavereihin tai vaikka perhejuhliin.

Kuuden hehtaarin kokoisella, erämaisella Evon Syväjärvellä viihtyvät erityisesti kalastajat, työporukat ja luonnon ystävät, jotka eivät pelkää tarttua löylyhaasteeseen tai kalastuskamppeisiin! Syväjärvi kuhisee kalaa, jolloin ihan jokaisesta voi kuoriutua oman elämänsä onnenonkija. Järveen istutetaan vuosittain noin 2500 kiloa lohikalaa, mikä takaa, että eväkkäitä riittää nappaamaan syötteihin.

Kaipaatko lisäksi kylpypaljuissa rentoutumista? Järjestyy. Laavulla tulistelua? Ilman muuta. Kunnon löylyjä? Tietenkin! Ruokahuoltoon löytyy myös kunnon keittiö, jossa loihdit lomaherkut ja rannasta nuotiopaikka, jossa loimutat vastanostetut kirjolohet.

Tässä on tilausta vaille valmis tukikohta kalastusporukoille, firmaporukoille ja polttariporukoille, jotka osaavat nauttia mökkielämästä. Täällä vietetään aikaa juuri niin kuin huvittaa – rennosti ja rouheasti!

Mökkien kuvaus

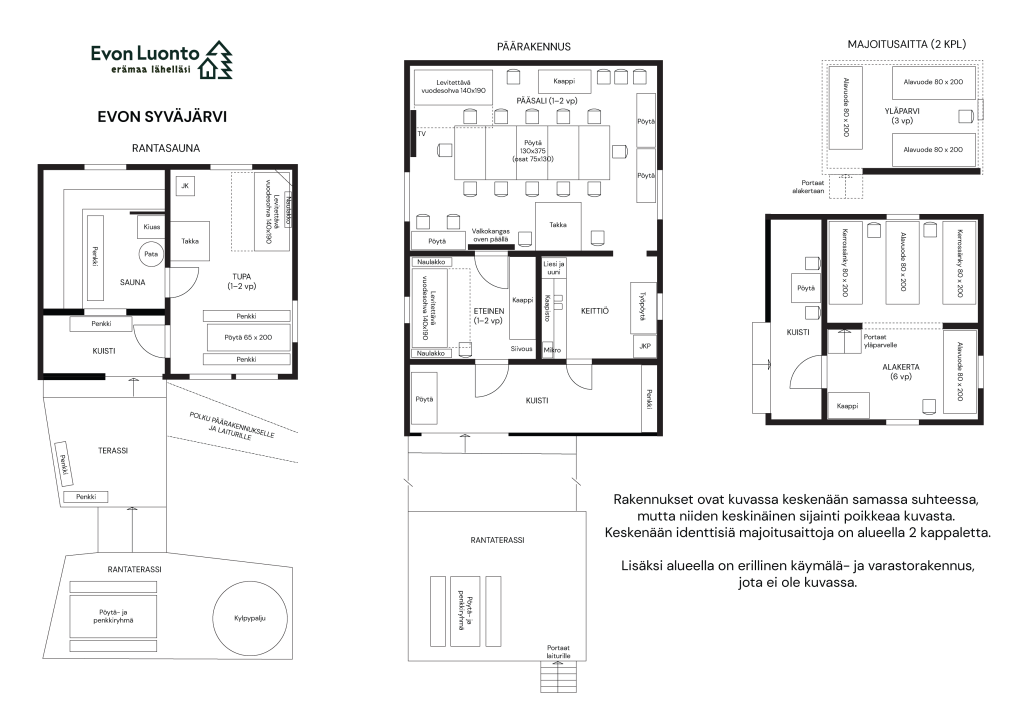
YLEISTÄ: Evon Syväjärven kokonaisuuteen kuuluvat talviasuttavien päärakennuksen ja 2 majoitusrakennuksen ohella oma ranta, rantasauna sekä laavu ja nuotiopaikka. Vuodepaikkoja kalaisan Syväjärven rannalla sijaitsevat mökit tarjoavat loma-asunnon 20 vieraalle, joiden käytössä on lisäksi peräti 6 soutuvenettä. Syväjärvi soveltuu kalastajien ja omaa rauhaa etsivän mökkeilyn ystävien lisäksi mainiosti myös yritysvieraiden tyky-tapahtumiin ja polttariporukoille.

OLESKELU/KOKOUSTILAT: Tilaa päärakennuksessa on noin 20 hengen ruokailuun, yhdessäoloon, kokoukseen tai perhejuhliin. Varusteena on 42 tuuman taulutelevisio tietokoneliitännällä. Tilassa on myös valkokangas, dataheitin on saatavilla lisätilauksesta. Erillisen rantasaunan takkahuoneessa on pirttikalusto, takka, sohva ja jääkaappi-pakastin.

MAJOITUSTILAT: 2 erillistä 9 hengen majoitusrakennusta sijaitsevat päärakennuksen tuntumassa lähellä rantaa. Molemmissa on alakerrassa 6 ja parvella 3 vuodepaikkaa.

Päärakennuksessa ja saunatuvassa voi lisäksi yöpyä yhteensä 3–6 henkeä, jolloin vuodepaikat riittävät yhteensä 21–24 vieraalle. Peittoja ja tyynyjä on vuodepaikkoja vastaava määrä.

KEITTIÖ: Keittiön varustuksena on juokseva kylmä- ja lämminvesi, astiasto 20 hengelle, sähköhella ja -uuni, jääkaappi-pakastin, mikrouuni ja Moccamaster.

SAUNA JA KÄYMÄLÄT: Puulämmitteisen rantasaunan lauteilla on tilaa 10 vieraalle. Juokseva kylmä kaivovesi tulee hanasta, ja pesuveden voi lämmittää puukiukaan padassa. Kaksi kuivakäymälää sijaitsevat erillisessä rakennuksessa päärakennuksen ja majoitusrakennusten välissä.

ULKOTILAT JA PALJU: Päärakennuksen edessä on avoterassi penkkeineen. Nuotiopaikka ja laavu ovat rakennuskokonaisuuden keskellä, järven ja alueen halki virtaavan puron rannassa. Alueella on myös kalan käsittelypaikka, 6 soutuvenettä ja 3 laituria. Saunaterassilla on puulämmitteinen kylpypalju, jonne sopii noin 6 kylpijää samanaikaisesti. Huomaathan, että kaiuttimien käyttö ulkona ei ole sallittua, jotta luonnon rauha ei kärsi.

KALASTUS, VENEILY JA ULKOILU: Syväjärvi soveltuu kalastuksen ystäville, sillä järveen istutetaan ennen kaikkea lohikaloja, noin 2500 kiloa vuodessa. Tyypillinen Syväjärven saaliskala on reilun kilon painoinen kirjolohi, mutta myös muita lajeja uiskentelee järven syvyyksissä. Järvessä voi kalastaa vieheellä ja perholla sekä talvella myös pilkkimällä, silloinkin ilman saalisrajaa.

Pyydä tarjous mökkien vuokrauksesta

HINNOITTELU: Evon Syväjärven hintaan sisältyy 20–25 hengen päärakennuksen tilat, kaksi majoitusrakennusta, 6 soutuvenettä ja rantasauna sekä laavun ja nuotiopaikan käyttö. Lisäpalveluna on mahdollista tilata loppusiivous, kylpypalju, liinavaatteet pedattuina tai pinkkana, pyyhkeet sekä kalastusoikeus ja kalastusvälineet. Tarjoamme myös ohjelma-, ruokailu- ja työpalvelut; esimerkiksi saunan ja paljun valmistelun ennen vieraiden saapumista. Kaikki lisäpalvelut tulee tilata viimeistään 14 vrk ennen saapumista.

PYYDÄ TARJOUS: Selvitä oma hintasi nopeasti ja helposti täyttämällä tarjouspyyntölomake. Järkihintaisen lähiloman etsijän kannattaa huomata, että etenkin matkailusesonkien ja viikonloppujen ulkopuolella vuokraamme eräherkkujamme todella kilpailukykyisillä hinnoilla!

Evon Syväjärven avaintiedot

  • 1–50 vierasta päiväkäytössä
  • 1–21 vuodepaikkaa 4 rakennuksessa
  • Ilmastointi pää- ja majoitusrakennuksissa
  • Juokseva vesi keittiössä
  • Astiastot min. 25 hlölle
  • Ruokailu-, juoma- ja tarjoiluastiastot
  • 2 takkaa
  • Puusauna järven rannassa
  • Grillauslaavu piha-alueella (ei pallogrillejä)
  • Laajakuva-tv (ei muita audiolaitteita)
  • Valkokangas esityskäyttöön
  • Kylpypalju 6 henkilölle rannassa
  • Sijainti järven rannalla
  • Veneitä käytössä kesällä
  • Kalastusmahdollisuus
  • Noin 8 pysäköintipaikkaa

Etäisyyksiä ja lähikohteita

Hintaesimerkkejä Evon Syväjärvellä

  • 20 hlön yöpyvä omatoimiloma tai -juhlat alkaen 32 €/hlö/vrk
  • 15 hlön yöpyvä omatoimikokous alkaen 56 €/hlö/vrk
  • 20 hlön viikonloppupirskeet (pe–su) alkaen 60 €/hlö/vkl
  • 20 hlön omatoiminen tyky-vuorokausi noin 37 €/hlö/vrk
  • 15 hlön yöpyvä kokous alkaen 48 €/hlö/vrk
  • 15 hlön viikonloppukokous (pe–su) alkaen 80 €/hlö/vkl
Huomautus: Oheiset hinnat ovat suuntaa-antavia sesonkiaikojen ulkopuolisia alkaen-hintoja. Hinnat ovat korkeampia sesonkiaikoina. Teemme sitovan tarjouksen kullekin ryhmälle ajankohdan, vierasmäärän ja vuokrauksen pituuden perusteella. Pidätämme oikeuden muuttaa internetissä erilaisilla kolmansien osapuolten verkkosivuilla ilmoitettuja palveluidemme hintoja.
Syväjärventie 127 16970 Hämeenlinna.

Kohteen perustiedot

  • Kokonaispinta-ala 190 neliömetriä
  • Rakennettu 1980
  • Autopaikat piha-alueella
  • Ei sähköauton latausmahdollisuutta

Evon Syväjärven vuodepaikat eri tiloissa

  • Majoitusaitat (2 kpl)
  • Parvi (3 hlö) 3 kpl 80x200 cm sänkyjä
  • Alakerta (6 hlö) 4 alasänkyä, 2 yläsänkyä, kaikki 80x200 cm
  • Päärakennus
  • Sali (1–2 hlö) Levitettävä vuodesohva 140x190 cm
  • Eteinen (1–2 hlö) Levitettävä vuodesohva 140x190 cm
  • Rantasauna
  • Tupa (1–2 hlö) Levitettävä vuodesohva 140x190 cm
Majoitusaitoissa (2 kpl) mahtuu nukkumaan yhteensä 18 henkilöä. Päärakennuksen ja saunatuvan vuodesohvilla voi nukkua 3–6 henkilöä. Vuodepaikkoja Evon Syväjärvellä on yhteensä 21 vieraalle tai 24 vieraalle, jos päärakennuksen ja saunatuvan vuodesohvilla nukkuu 2 henkilöä.