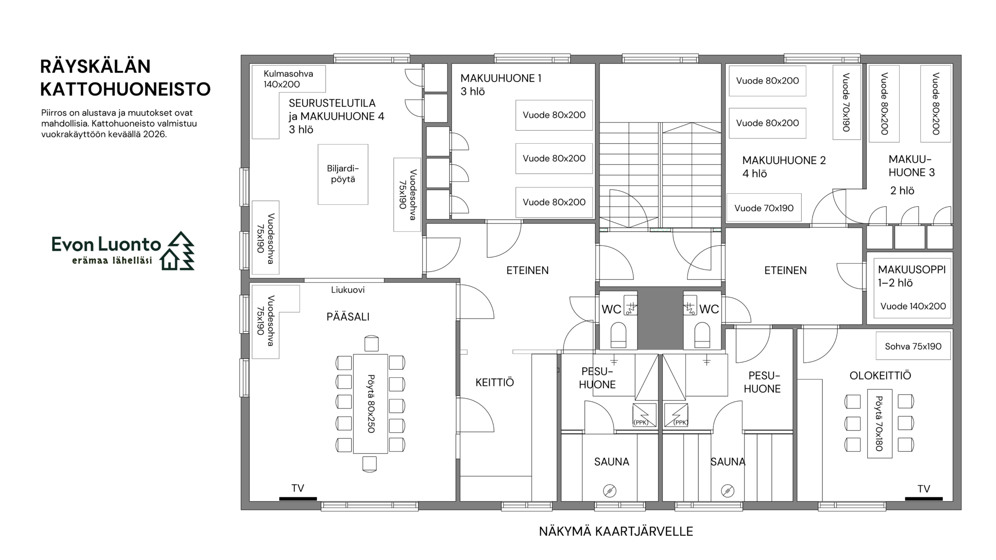
Räyskälän Kattohuoneisto

Loppi – Kattohuoneisto luonnonkauniilla järvimaisemalla
Vain 90 km päässä Helsingistä, 115 km Tampereelta ja 130 km Turusta, avautuu kattohuoneistosta näkymä, jonka ääressä kaupungin kiireet ja arkiset ahdistukset unohtuvat!

Räyskälän Kattohuoneisto on Räyskälän Suuren Huvilan länsipäädyn yläkerrassa sijaitseva kahden erillisen huoneiston kokonaisuus, joka valmistuu vieraidemme käyttöön toukokuussa 2026. Kattohuoneistoissa järjestät enintään 15 hengen virkistyspäivät, tehokkaat tykyilyt tai perinteisen mökkiloman perheen ja kavereiden kesken.

Vuokraamme hulppeaa kattohuoneistoa ensisijaisesti Räyskälän Suuren Huvilan varanneelle asiakasryhmälle lisäämään yksityisyyttä ja juhlavuutta, mutta mahdollisuuksien mukaan myös erikseen esimerkiksi pienemmän porukan kokouksiin, juhliin ja vapaa-aikaan. Kattohuoneistoa ei kuitenkaan vuokrata toiselle asiakkaalle, jos Räyskälän Suuri Huvila on varattu, jotta voimme taata Räyskälän Suuren Huvilan asiakasryhmän oman rauhan ja yksityisyyden.

YLEISTÄ: Räyskälän Kattohuoneisto koostuu kahdesta erillisestä huoneistosta, joiden yhteispinta-ala on 160 neliömetriä. Huoneistoista isompi on kooltaan 90 m2 ja pienempi 70 m2. Molempien huoneistojen ikkunat avautuvat suoraan luonnonkauniin Kaartjärven rantamaisemaan. Isompi huoneistoista on palvellut rakennuksessa ennen toimineen kansakoulun johtajattaren asuntona ja pienempi koulun talonmiehen asuntona. Saneerauksen yhteydessä Kattohuoneiston alkuperäinen 1950-luvun tunnelma on pyritty säilyttämään, jotta vieraamme voisivat aistia, millaista on ollut kansakoulun opettajan elämä ja työpaikka.

OLESKELU- JA KEITTIÖTILAT: Räyskälän Kattohuoneiston molemmat huoneistot on varustettu nykyaikaisella keittiöllä. Keittiöiden varustuksesta löytyy astiastot yhteensä 15 henkilölle, sähköhella ja -uuni, iso jääkaappi, pakastin, astianpesukone, mikrouuni, Moccamaster, vedenkeitin ja leivänpaahdin.

Molemmissa huoneistoissa on iso 65 tuuman laajakuvatelevisio, jota voidaan käyttää myös peli- ja kokousnäyttönä. Kaikissa tiloissa on myös lisämaksuton wifi-yhteys.

MAJOITUSTILAT: Vuodepaikkoja Kattohuoneisto tarjoaa yhteensä 5 makuuhuoneessa enintään noin 15 vieraalle. Isommassa huoneistossa on noin 10 ja pienemmässä 6 vuodepaikkaa. Kattohuoneiston lisämajoitustilaksi on mahdollista vuokrata suoraan alapuolella sijaitseva erillinen kulmahuoneisto, jonka 3 makuuhuoneessa ja pääsalin vuodesohvalla on yhteensä 7 vuodepaikkaa. Peittoja ja tyynyjä on vuodepaikkoja vastaava määrä.

SAUNA, SUIHKUT JA WC-TILAT: Kumpikin huoneistoista on varustettu omalla sähkösaunalla, suihkutilalla ja omalla erillisellä wc:llä. Lisätilaksi vuokrattavissa olevassa alakerran kulmahuoneistossa on lisäksi oma wc.

ULKOTILAT JA PALJUT: Suoraan huoneiston alapuolella Suuren Huvilan järven puoleisella seinustalla on 60 neliömetrin maisematerassi, jossa on 3 puulämmitteistä kylpypaljua. Erikseen vuokrattavasta alakerran saunaosastosta on pääsy maisematerassille ja uimaan Kaartjärveen. Alhaalla järven rannassa on grillikatos ja nuotiopaikka.

HINNOITTELU: Räyskälän Kattohuoneiston hintaan sisältyy sopimuksen mukaan joko yhden tai kahden huoneiston käyttö. Lisäpalveluina on mahdollista tilata mm. alakerran ison saunaosaston, kylpypaljujen ja grillikatoksen käyttö, loppusiivous, liinavaatteet pedattuina tai pinkkana sekä pyyhkeet. Tarjoamme myös veneiden ja kanoottien vuokrauksen, ohjelmapalveluja, kalastuksen opastusta sekä ruokailupalvelut sekä työpalvelut; esimerkiksi saunojen ja paljujen valmistelut ennen vieraiden saapumista. Kaikki lisäpalvelut tulee tilata viimeistään 14 vrk ennen saapumista.

PYYDÄ TARJOUS: Räyskälän Kattohuoneisto ottaa ensimmäiset vieraansa vastaan toukokuussa 2026, mutta varauksia luonnollisesti otamme vastaan jo nyt. Kysy oma hintasi Räyskälän Kattohuoneiston vuokrauksesta ja lisäpalveluista täyttämällä tarjouspyyntölomake.

Räyskälän Kattohuoneiston avaintiedot

  • 1–15 vierasta päiväkäytössä
  • 1–15 vuodepaikkaa 5 makuuhuoneessa
  • Ilmastointi
  • 2 suihkua ja 2 wc:tä
  • 2 koneellistettua keittiötä
  • Ruokailu-, juoma- ja tarjoiluastiastot
  • Vauvan syöttötuoli
  • Omat alkoholijuomat sallittu
  • 2 sähkösaunaa
  • 2 laajakuva-tv:tä (ei muita audiolaitteita)
  • Lisämaksuton wifiyhteys
  • Sijainti järven rannalla
  • Veneitä käytössä kesällä
  • Jalkapallo- ja lentopallokenttä
  • Useita ulkoilureittejä lähialueella

Etäisyyksiä ja lähikohteita

  • Metsään 0 km
  • Rantaan 35 m
  • Kauppaan (kyläkauppa kesällä) 2 km
  • Kauppaan (ympäri vuoden) 21 km
  • Lopen kirkonkylään 21 km
  • Hämeenlinnaan 42 km
  • Helsinkiin 100 km
  • Lahteen 98 km
  • Tampereelle 115 km
  • Turkuun 129 km
  • Poriin 170 km
  • Helsinki-Vantaan lentoasemalle 85 km
  • Räyskälän ilmailukeskukseen 3 km

Hintaesimerkkejä Räyskälän Kattohuoneistossa

  • 15 hlön yöpyvä lomanpätkä tai juhlat alkaen 56 €/hlö/vrk
  • 10 henkilön yöpyvä omatoimikokous alkaen 61 €/hlö/vrk
  • Yrityksen virkistyspäivä 15 hlölle alkaen 67 €/hlö/vrk sisältäen majoituksen ja 3 kpl kanootteja/soutuveneitä vuokralle
  • 12 hlön viikonloppu (pe–su) alkaen noin 61 €/hlö/vkl
  • 10 hlön 5 vuorokauden loma alkaen noin 135 €/hlö/5 vrk
Huomautus: Oheiset hinnat ovat suuntaa-antavia sesonkiaikojen ulkopuolisia alkaen-hintoja. Hinnat ovat korkeampia sesonkiaikoina. Teemme sitovan tarjouksen kullekin ryhmälle ajankohdan, vierasmäärän ja vuokrauksen pituuden perusteella. Pidätämme oikeuden muuttaa internetissä erilaisilla kolmansien osapuolten verkkosivuilla ilmoitettuja palveluidemme hintoja.
Räyskäläntie 670 12820.

Kohteen perustiedot

  • Kokonaispinta-ala 160 neliömetriä
  • Rakennettu 1950, peruskorjattu 2026
  • Autopaikat rakennuksen edessä
  • Ei sähköauton latausmahdollisuutta

Hyödyllisiä linkkejä